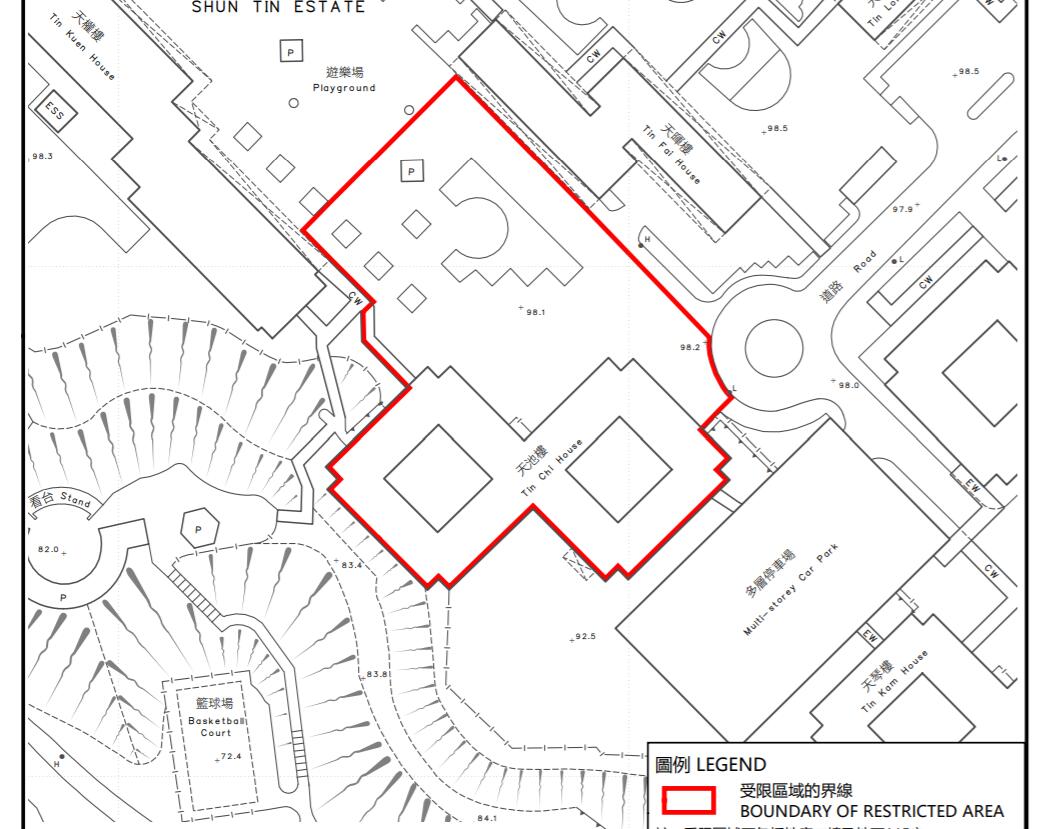
因應污水樣本對新冠病毒檢測呈陽性,懷疑在大廈內有隱形患者,港府今日(14日)下午5時起圍封觀塘順天邨天池樓(不包括地庫二樓及地下115室),及觀塘順天邨天琴樓(不包括地庫二樓)進行強制檢測。受檢人士須在其處所等候,直至「受限區域」內所有已識別的受檢人士完成檢測,而相關檢測結果亦已獲大致確定,方可離開其處所。政府目標是在明日(15日)約下午1時完成此行動,視乎檢測結果,行動或會延長。
政府將於「受限區域」內設立臨時採樣站,並要求受檢人士於今日晚上10時前接受檢測。受檢人士會獲安排到採樣站接受核酸測試,由專人以咽喉和鼻腔合併拭子採樣。在所有人士有檢測結果前,受檢人士必須留在處所內,以減少交叉感染的風險。政府會作安排方便行動有特別困難的人士採樣。「受限區域」內曾於2021年12月31日或之後確診新型冠狀病毒病的人士,將無需於強制檢測行動中接受檢測。
如在宣告生效時,個別非當區居民逗留在「受限區域」內,會造成不合理困苦,政府人員在考慮個別情況後,可酌情處理讓該人士離開「受限區域」,而該人士必須已按指示進行檢測及留下個人資料供聯絡之用。
根據今日發出的強制檢測公告,除了上述指明人士外,任何於3月1日至3月14日期間曾身處上述大廈內超過兩小時的人士,即使在「相關宣告」開始生效時不在「受限區域」內,亦須在3月16日或之前接受強制檢測。由於涉及變異病毒株,審慎起見,已接種疫苗及近日已進行檢測的人士均仍須接受檢測。

